
The French Regional Contemporary Art Funds (Frac), initiated in 1982 by the then culture minister Jack Lang as part of his decentralisation initiative, are to raise their profile with a number of new buildings opening across the country in the next two years.

The first Frac organisation to benefit from the overhaul is Frac Bretagne designed by the architect Odile Decq in Rennes, northern France. Works drawn from the 4,700-strong collection by artists including Richard Long and Pierre Soulages will be shown across three galleries.

The new building housing the Frac Bretagne is located in the integrated development zone of Beauregard, in the north-west of Rennes, between the Ile and Vilaine valleys. As its name suggests (Beau regard meaning “beautiful view” in French), the chosen site is located at a height and offers glimpses of the surrounding landscape. the Frac will stand on the edge of the Parc de Beauregard, a strategic public facility at the heart of this integrated development zone open to pedestrians and cyclists.

The Frac project, within the tight borders of the constraints of urban regulation, reinterpretes the apparent contradictory and dual idea of the necessary urban inscription simultaneously to that of immaterial escape, from nature to artificial, from heavy to light, from shade to brightness.

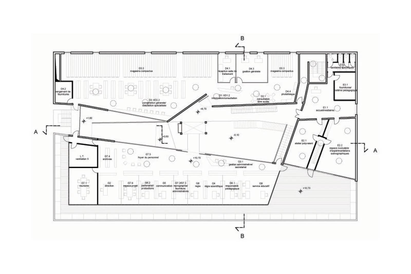
Section in architecture, the section reveals the invisible ; the section represents a specific point of view. in the Frac project, the section reveals itself in the transfer from horizontal to vertical, from outside to inside and outside again, from the foyer towards the artworks.

Sequences the exhibition areas and other activities are both separate and articulated. the system of transition through which atrium and ramps contaminate and irrigate space around, each element becomes attractive. Dynamic balance Being in permament research, exploring, questioning, going beyond, looking for the point of rupture, limit of tension: these are the basis of numerous artworks in contemporary art.

So does it reflect the architect’s work, too. the Frac project tempts to explore some of these processes. A contemporary art space designed as a sensory experience. the entrance, the reception, the rooftop terrace, the multiple ramps and bridges; all these spaces are designed to lead the visitor on a vertical pathway throughout the building.

The space is never centralized, never static, but always dynamic, allowing the visitor constant sensory exploration. This pathway is one of permanent discovery. the space is never centralized; attracting upwards or dissolving themselves, the perspectives always remain tangential an offer sequences of points of view.

The subtle play with colour enables various different colours to stand out from the dominating black and blue materials used within the steel building. On the level of the garden, the tainted grey glass façade plays with reflection, only letting the visitor see one part of the heart of the building. Inside, the red of the atrium stands out and makes the place bright.

The project of Odile Decq is in line with the will of the Frac to make the place as flexible as possible, while reserving specific areas for each activity. Thanks to its functionality, it best meets the needs of the fund. in terms of aesthetics, it gives the structure an undeniable attractiveness.










Location: Zac Beauregard, Rennes, France Architect: Studio OdileDecq Area: 5,000 m2 Cost: € 11 Million Year: 2012 Client: Regional Council of Bretagne