
The site is located urban area close to the down-town of Daegu, one of the biggest Cities in South Korea. in contrast to its locality, this town is isolated from the major city development. the community gets older, and young couples have been moving out to other towns to provide better education for their children.

Its new design is mainly reasoned to help those people in the town to see better place with its unique and landmark architecture from their home. This small change would tell to others the town is not abandoned. Thus, seniors in the church are outnumbered among church members. Yet, its mountain hill entrance hinders accessibility for them and its deficiencies of parking space even demote its condition worse. Designing the new church becomes to provide solutions to those problems.

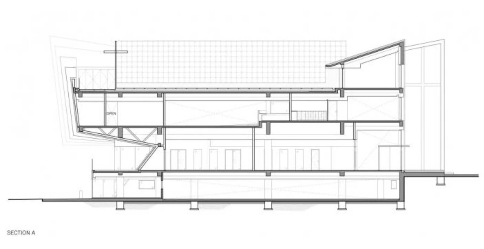
Design Description Based on the limited budget about 2.8 million Usd for 3500sm size building; it was a big challenge to design the landmark in this region. the overall space requirement is separated into two major elements which are parking area, 900sm, and non-parking area, 2600sm.

On one hand, the parking grid was mainly applied to limit the design for the utmost efficiency to maximize the space, and on the other hand, we had to interpret the church into another symbolic element to create the landmark in the town by differentiating the usual icon of church design in Korea, such as red bricks, symmetric plan, and the pointy roof and the cross at rooftop.

Not to mention, we had to deeply contemplate about the Christianity. the symbolic idea of Christianity had to be revealed in align with Christians’ life in this world. Our thought was minimized by the definition of the Heaven referred to the teaching of Jesus on the mountain, when he taught of “Blessed are the poor in spirit, for theirs is the kingdom of Heaven.”

It’s meaning that our heaven is among us even if we are poor. Despite various circumstances confronting us as always, our life should experience the Heaven. Only be the condition to be the poor in spirit. Architecturally, the sloped site becomes catalyst to express the obtuse or acute angles of the exterior shape as a form of life.

It represents anguish, pain, sadness, happiness etc, those of which become even eased or disappeared, or even rectified in a better way thru the reflection of the sky of the box(worship area) in the middle of the building as if people see the heaven right now. Because of it, they may overcome worse situation than anything they would ever face. They are blessed.

They are people who are poor in spirit. They know their sinful nature. Therefore, through the sky reflected by the mirror stainless steel, we believe it will give them a moment to pause and think about their victory given already. That was the icon that we wanted to make for this new landmark.






Location: Daegu, South Korea Architects: TheeAe Ltd Site Area: 2,716 sqm Total floor area: 3,800 sqm Cost: Usd 2,700,000. 00 Status: Commissioned / Unbuilt Year: 2013