
The new Jan Shrem and Maria Manetti Shrem Museum of Art at the University of California, Davis, will be created by a team of architects and builders intent on redefining the university museum and fostering a new conversation in the arts.

Uc Davis announced that it has selected an emerging New York-based design firm, So – Il, to design the campus’s planned art museum, envisioned as a regional center of experimentation, participation and learning. the team was selected from a pool of three finalists following a five-month design competition with extensive involvement of students and others in the community.

The jury of faculty, architects and museum professionals who selected the winning design cited its alignment with the essential characteristics of Uc Davis, its celebration of the campus’s connection with culture and cultivation, and its use of light. They also cited the design’s potential to expand and evolve, along with its goal of achieving Leed Gold certification for sustainability from the U.S. Green Building Council.

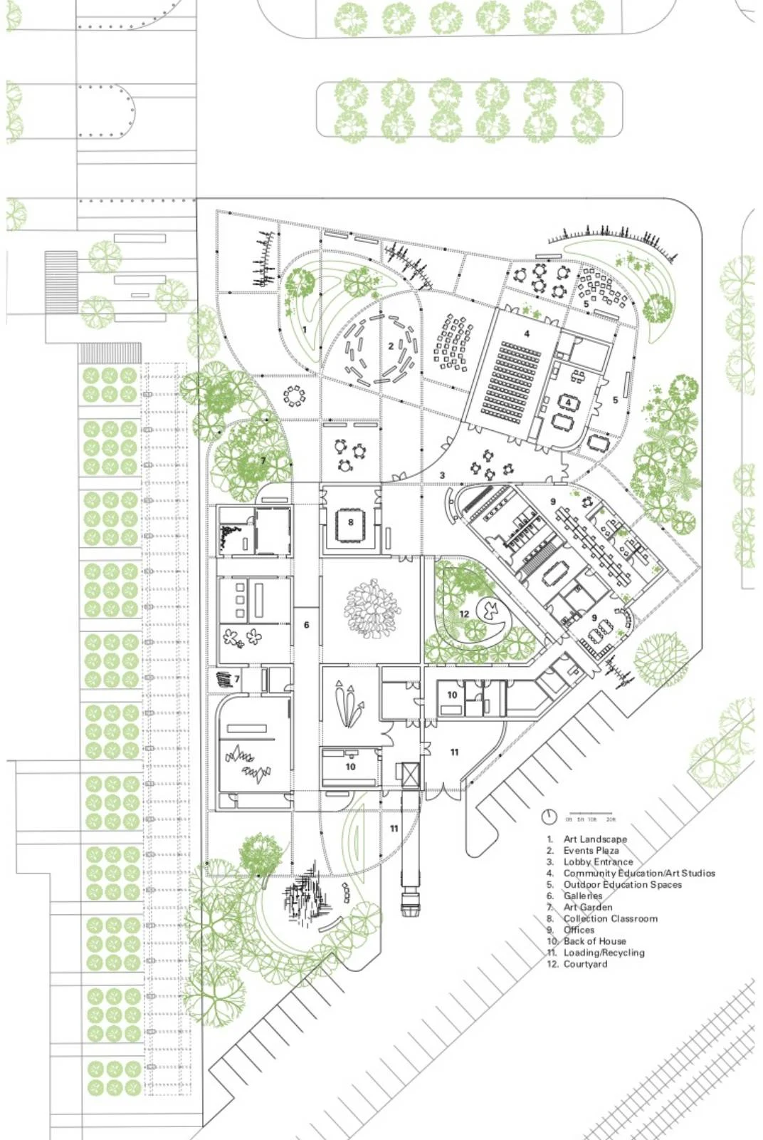
The design’s centerpiece is a 50,000-square-foot steel canopy that floats atop a series of interconnected interior and exterior spaces. Illuminated at night, the grand canopy will beckon drivers along Interstate 80 between San Francisco and Lake Tahoe and establish a new focal point for the campus. It will house the university’s fine art collection and provide space for thought-provoking exhibitions, faculty lectures, artists’ residencies, and hands-on studio art classes.

“In our architectural proposal for the Jan Shrem and Maria Manetti Shrem Museum of Art we try to capture the spirit of the California Central Valley—the sense of empowerment from being able to cultivate and grow freely – a spirit of optimism, imagination and invention. As an overarching move, we propose a 50,000 square-foot permeable cover—a ‘Grand Canopy’—over both site and building. the distinct shape of this open roof presents a new symbol for the campus. the Canopy extends over the site, blurring its edges, and creating a sensory landscape of activities and scales” says the architects.

Under the Canopy, the site forms a continuous landscape, tying it in with its context. Interwoven curved and straight sections seamlessly define inside and outside. the result is a portfolio of interconnected interior and exterior spaces, all with distinct spatial qualities and characteristics that trigger diverse activities and create informal opportunities for learning and interaction. Textures and landscape break the program down into smaller volumes to achieve a human, approachable scale. the future art museum is neither isolated nor exclusive, but open and permeable; not a static shrine, but a constantly evolving public event.



Location: Davis, USA Architects: SO-IL, Bohlin Cywinski Jackson Landscape: Office of Cheryl Barton Lighting Design: Fisher Marantz Stone, Inc. MEP, Audio/Visual, Security and Sustainability: Wsp Structural Engineering: Rutherford + Chekene Acoustics: Charles M. Salter Associates, Inc. Civil Engineering: Cunningham Engineering Construction: Whiting-Turner Area: 29,000 sqf Year: 2016Client: University of California Davis